・インタビューは2017年11月に実施しました。
・個人による感想のため、実際に導入いただいた場合の効果は異なる場合があります。
 導入のきっかけについて
導入のきっかけについて
			 
				― 全館空調を導入しようと思ったきっかけは?
家じゅうが暖かく 生活感のない家にするために必要だと思いました。
お母様:娘夫婦と一緒に住むことになり、以前の家を建て替えようと決めた時、とにかく暖かい家に住みたいと思いました。以前の家は、冬は本当に寒くて、ホットカーペット、石油ストーブ、こたつ、エアコンなどの暖房器具を併用していたので、ホテルのように、どこにいても快適な家にしたいと思ったんです。
家づくりにあたり、いろいろな人に話を聞いてみたところ、全館空調という設備を知りました。中でも、我が家より寒いエリアに住んでいる人から、「全館空調のおかげで暖かくて快適」と聞いて、それはよさそう!と思いました。
奥様:母の言う暖かい家を叶えると同時に、吹き抜けがあり、壁や扉などの仕切りが少ないすっきりした家にしたいという希望がありました。生活感を出さないようにしたかったですね。
ご主人:部屋数を考えると、外に室外機をずらっと並べなくてはならないことは予想していました。ただ、外観を考慮するとそれは避けたかったので、その点でも全館空調がいいと思いました。エアコンが各部屋につかないというのもいいと思いました。ほこりを被った時の掃除等も、各部屋となると大変ですからね。
 導入後の暮らしの変化について
導入後の暮らしの変化について
			― パラディアにしていかがですか?
ウォークインクローゼットは暖かく
ゆっくり洋服を選べます。
朝の掃除も習慣に。
 
					奥様:毎日、その日に着る洋服を決める時、1着試しては別の服を着て…といったことを行うことがありますが、以前は冬は寒さを感じることがありました。今はウォークインクローゼットも暖かいので、寒さを気にせずに納得するまで洋服を選ぶことができていいですね。
あと、朝起きてすぐにモップ掃除をするのですが、お風呂周りなど前の家なら冷え切っているはずの場所も、暖かく快適なおかげで、苦にならずにうまく習慣づけできたのかなと思います。
夜中にベッドから起き上がっても、部屋が暖かくていいですね。
 
						 
						お母様:私も今は寝室脇にクローゼットがあるので、洋服選びはとてもスムーズになりました。以前は、こたつで洋服を温め、その洋服を持って、ストーブの前で着替えをしたりしていたくらいでしたから。あと、夜中に目が覚めてベッドから起き上がっても、部屋が暖かくていいですね。
“ここが暖まっている”というところがなく、全体的に心地いいと感じています。
奥様:実はこの家を建てる時、全館空調だけでなく、家じゅうに床暖房も入れているんです。とはいえ、約2年住んでいる中で、床暖房を運転させたのは2度ほど。普段の暖房は全館空調のみです。1度、全館空調をOFFにして、床暖房だけでお部屋を暖めてみたんですが、床暖房は運転モードをMAXに近づけないと暖かさを実感しにくかったため、使うことがなくなりました。また、床暖房は足元はすごく暖かくなりますが、全館空調だと、“ここが暖まっている”というところがなく、全体が暖かく心地いいですね。
風邪をひきにくくなったり、花粉症の症状が和らぎました。
ご主人:体調に関していうと、今の家に引っ越してきてから、どこの部屋に行っても一定の温度環境のせいか、風邪をひきにくくなったように思います。妻たちも、花粉が舞う季節は、花粉症のため外や職場でマスク必須のようですが、家では症状も和らぐようです。
※個人の感想です。効果や感じ方には個人差がございます。
 
				 全館空調のある家に住んでみて思うこと
全館空調のある家に住んでみて思うこと
			― 使ってみて気になるところはありますか?
温度設定に少し困ることも。
奥様:少し困ることといえば、温度設定のこと。基本的に仕切りのない状態で生活していますが、起床直後は、主人を起こさないよう、寝室とリビングダイニングの間のドアを閉めるんですね。そうすると暖房時、主人が汗ばんで目覚めることがあるんです。母も、ドアを閉めて自分の部屋にいる際は、多少暑く感じることがあるようなので、ドアを閉めた時にちょうどいい温度や、家族それぞれに心地よい温度があるんでしょうね。
― パラディアのある家に住んでみて思うことは??
我が家は全館空調を入れてよかったと思っています。
奥様:家は何度も建てられるものではないので、できる限り失敗はしたくないといろいろ情報収集した結果、全館空調を入れることにしました。我が家は全館空調を入れてよかったと思っています。
 
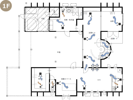
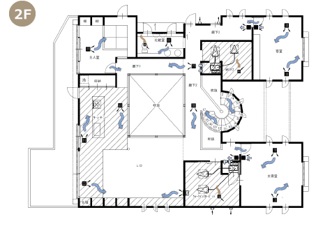
					M様邸間取り図
 
					 
					- 
						 玄関 
- 
						 階段 
- 
						 LDK① 
- 
						 LDK② 
- 
						 寝室① 
- 
						 寝室② 
- 
						 ウォークインクローゼット 
- 
						 お母様の部屋 
- 
						 脱衣所 
- 
						 浴室 
- 
						 トイレ 
- 
						 外観 









